
Al-Azhar Foundation
Read Article
Al Azhar Foundation marked a major milestone in November 2025 with the grand opening of its new masjid and community center, officially welcoming the local Muslim community and the broader Westfield community into a space designed for worship, learning, and connection.
The celebration took place on Sunday, November 23, 2025, and brought together community members, families, and guests for a meaningful day of reflection and fellowship. The opening event featured guided tours, congregational prayers, introductory remarks, Qur’an recitation, and time for community gathering, creating a warm and memorable occasion that reflected the spirit and purpose of the new facility.
More than just a building, the new Al Azhar Foundation center represents a shared vision for a welcoming and inclusive environment where people can grow spiritually, strengthen relationships, and build a stronger sense of belonging. With its mission centered on serving Muslims of all backgrounds and ages, the foundation seeks to provide a space that supports worship, education, and community life in a meaningful and lasting way.
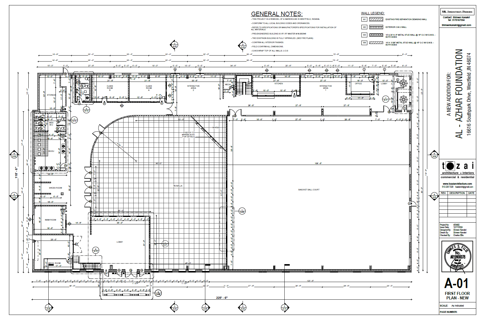
The new masjid and community center will serve as both a place of worship and a community hub. At its core are the daily religious services that support the spiritual life of the congregation, including the five daily prayers, Jumu'ah prayers every Friday, and Taraweeh prayers during Ramadan. These services establish the masjid as a central place for devotion, reflection, and unity.
In addition to worship, the center offers a strong educational foundation for the community. Its education programs include Qur’an memorization, Arabic language classes, and Islamic studies for learners of all ages, from children to adults. These programs are designed to nurture faith, deepen understanding, and create opportunities for lifelong learning.
The facility also places a strong emphasis on youth development. Through its youth programs, Al Azhar Foundation provides engaging activities and opportunities for young Muslims to learn, grow, and build friendships in a supportive environment. This investment in younger generations reflects the foundation’s broader commitment to creating a vibrant and connected community for the future.
Beyond worship and education, the new center is designed to bring people together through community events and shared experiences. Regular gatherings, Eid celebrations, and special lectures from visiting scholars will help foster a sense of unity and cultural enrichment. The facility also includes spaces available for community events and private gatherings, including meeting areas and shared-use spaces that can support a wide range of community needs.
Al Azhar Foundation’s commitment to service extends even further through its focus on care and support. The center will offer social services, including assistance for families in need through zakat distribution and community support programs. This aspect of the foundation’s work reinforces its role not only as a spiritual home, but also as a source of compassion, outreach, and practical support.
The opening of this new masjid and community center is a significant step forward for Al Azhar Foundation and the Westfield community. It stands as a symbol of faith, service, and togetherness—an inviting space where worship, education, and community building come together under one roof.
Dr. Shireen Kanari

Drawing by SK Architect+Design

Construction phase
Musalla under construction


Mihrab close up

Finishing phase
Musalla entrance

Storage

Musalla glazing

Corridor

Musalla wall details

Final images
Musalla entrance





